产品动态
您的位置: 主页 > 新闻中心 > 产品动态

PSS4850 系列模块插框电源系统安装调试手册(二)

索引:PSS4850电源系统,电源系统安装调试,变电站电源系统    发布日期:2021-02-26
1 安全规定
本电源系统内部某些器件的工作电压及电流很大,为保证人身安全,应时刻遵守以下规定:
1.1.只有接受过电源系统培训并充分掌握电源系统知识的人员才可以安装此电源系统;
1.2.所有连接到该电源系统的外部电压为-48V 以下的电路必须满足 IEC 60950 标准中定义的 SELV 要求;
1.3.如要在电源系统插框内部操作,应确保电源系统不带电。必须断开电源系统的市电输入及电池;
1.4.配电电缆布线应合理且有保护措施,避免操作电源设备时触碰到这些电缆;
2 安装准备
开箱验货
只有货物到安装现场后才容许拆开包装箱进行验货。验货由用户方代表和艾默生网络能源有限公司代表共同完成。验货时,拆开包装,取出装箱单,对照装箱单检验设备的正确性、完整性,并检查物品是否有损坏。
准备电缆
电缆的选取应符合电气行业相关规范。交流电缆建议采用 RVVZ 型电缆,电缆至少应达到 70℃的耐温级别。在布线距离小于 30 米时,建议按电流密度 3.5A/mm2估算用线截面积,推荐不小于表 1-1 的电缆截面。
1-1 交流电缆截面选择表
连接件名称
连接件规格
交流电缆截面积
交流输入端子
PSS4850-3/19C5 M8 OT 端子
最大电缆截面积 35mm2
PSS4850-4/19C5 M6 OT 端子
最大电缆截面积 25mm2
 
直流电缆的截面积取决于流过电缆的电流和允许的电缆压降。电缆截面选择见表 1-2
表 1-2 直流电缆截面选择
连接件名称
连接件规格
直流电缆截面积
直流输出端子
PSS4850-3/19C6 M8 OT 端子
最大电缆截面积 35mm2
PSS4850-4/19C4 M8 OT 端子
最大电缆截面积 35mm2
系统接地电缆的截面积应与最大的交流输入线缆截面一致,但不小于 16mm2
 
3 机械安装注意
3.1.用于安装插框电源系统的机柜或机架应提供防火和电气防护外壳,或安装在水泥或其它不易燃烧平面,同时和其他易燃烧物保持足够的距离。
3.2.为方便维护,电源系统前、后方至少预留 800mm 维护空间。
3.3. 插框不能靠墙安装,必须留有足够的空间散热。
插框电源系统的工程图如图 1-1 和图 1-2 所示。
电源系统 
图 1-1 PSS4850-3/19C 安装尺寸(单位:mm)
电源系统 
1-2 PSS4850-4/19C 安装尺寸(单位:mm)&
注意
1.面板的松不脱螺钉,在不需要操作后,需要用十字螺丝刀拧紧。
2.模块把手也需要用十字螺丝刀来拧紧。
标准插框可安装于 19 英寸机架,如果安装于 21 英寸或 23 英寸机架,需要选配对应挂耳组件装配。21 英寸和23 英寸扩展挂耳如图1-3,图 1-4所示(以 PSS4850-3/19C
为例),用螺孔对准插框 19 英寸挂耳螺钉,拧紧。
电源系统 
图 1-3 23 英寸挂耳
变电站电源系统 
图 1-4 21 英寸挂耳
插框安装于机架内,建议增加插框托架以增加整体强度
PSS4850-3/19C 为例,托架板材厚度,托板建议尺寸和安装位置如图 1-5
变电站电源系统 
图 1-5 托板及机架封板制作
 
4 电气安装
4.1 连接交流线
4.1.1.在电气连接前,将所有开关等置于断开位置。
4.1.2.市电电缆的安装工作仅能由具有任职资格的人员执行。
电源系统接线端子如图,图 1-6 所示。连接完交流线后,用扎线带就近固定。
变电站电源系统 
图 1-6 交流接线端子示意图
注意
1.建议用户接地螺钉紧固力矩为 10.78N*M。
2.当系统单相输入时,需要预先短接 L1/L2/L3,截面与进线相等。
 
4.2 连接直流输出电缆
正负母排连接
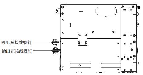
将直流输出正、负母排分别于用户配电机柜的正、负母排进行连接,接线端子位置见图 1-7 和图 1-8
直流电源系统 
图 1-7 PSS4850-3/19C 直流输出电缆接线端子示意图
直流电源系统 
图 1-8 PSS4850-4/19C 直流输出电缆接线端子示意图
在线割接
直流输出并机电缆连接按图 1-7 和图 1-8 进行连接,并机时的具体操作依据现场情况按割接规范确定。
4.3 连接信号线
系统提供 5 对干接点信号、1 个温度传感器和 1 RS232 接口,位于监控模块上。监控模块位置如图 1-9 所示。
直流电源系统 
图 1-9 监控模块位置示意图
各信号线接口分布如图 1-10 所示,接口功能见表 1-3
直流电源系统 
图 1-10 监控模块接口示意图
1-3 接口功能
接口
定义
接线说明
J1J5
干接点输出
连接信号电缆
J6
RS232 接口
连接 Modem 或上位机
J7
电池温度传感器接口
 
 
干接点功能描述见表 1-4
1-4 干接点功能
接口
定义
 
接口
定义
J1
交流停电
 
J4
负载下电
J2
直流过/欠压
 
J5
电池保护
J3
模块故障
 
 
 
注:上述为监控模块出厂默认值,干接点设置可通过监控模块更改
 
系统提供 LLVDBLVD 下电控制、防雷告警、负载熔丝告警等信号输出端子,如图 1-11
直流电源系统 
1-11 信号输出端子位置示意图
信号输出端子功能描述见表 1-5
1-5 信号输出端子功能
接口
定义
 
接口
定义
BAT-
监控电源-电池负
 
Bat
Fuse
1
电池熔丝 1 输入
SPD
1
防雷器告警干接点信号输入
2
电池熔丝 2 输入
2
Load
Fuse
1
负载熔丝 1 输入
LLVD
+
负载下电信号+
2
负载熔丝 2 输入
-
负载下电信号-
3
负载熔丝 3 输入
BLVD
+
电池下电信号+
4
负载熔丝 4 输入
-
电池下电信号-
5
负载熔丝 5 输入
RB1
+
电池分流器 1+
6
负载熔丝 6 输入
-
电池分流器 1-
 
 
 
RB2
+
电池分流器 2+
 
 
 
-
电池分流器 2-
 
 
 
注:
1BAT-是否连接根据实际需要确定,如果是电池下电监控失电式系统,BAT-则无需连接
2.电池分流器的正负是按充电方向,建议在开机后实际测试验证电池电流放电显示为负
 
4.4 连接温度传感器
温度传感器是可选附件,其探头工作电压为 12V,测量范围为-5℃~100℃,测量精度为±2℃。如有选配且未接入插框,则将温补电缆与 Temp 端子(接口位置如图1-7)进行对插,另一端温补探头贴到电池表面。